 | |
 |
| Content Area 3C- EARLY EUROPE & COLONIAL AMERICAS |
| BACK |
|
NEXT |
 |
 |
 |
Title: | ____ Isenheim Altarpiece (closed) |
| Artist: | ____ Grunewald |
| Period: | ____ Northern Renaissance |
| Year: | ____ 1512-1516 |
| Materials: | ____ oil on wood |
| | |
|
 |
Title: | ____ Isenheim Altarpiece (open) |
| Artist: | ____ Grunewald |
| Period: | ____ Northern Renaissance |
| Year: | ____ 1512-1516 |
| Materials: | ____ oil on wood |
| | |
|
 |
Title: | ____ Entombment of Christ |
| Artist: | ____ Pontormo |
| Period: | ____ Mannerism |
| Year: | ____ 1525-1528 |
| Materials: | ____ oil on wood |
| | |
|
 |
Title: | ____ Allegory of Law and Grace |
| Artist: | ____ Cranach the Elder |
| Period: | ____ Northern Renaissance |
| Year: | ____ 1530 |
| Materials: | ____ woodcut and letterpress |
| | |
|
 |
Title: | ____ Venus of Urbino |
| Artist: | ____ Titian |
| Period: | ____ High Renaissance |
| Year: | ____ 1538 |
| Materials: | ____ oil on canvas |
| | |
|
 |
Title: | ____ Frontispiece of Codex Mendoza |
| Culture: | ____ Mexico |
| Year: | ____ 1541 |
| Materials: | ____ ink and color on paper |
| | |
| |
|
 |
Title: | ____ Il Gesu |
| Artist: | ____ da Vignola (architect - plan), della Porta (architect - facade) |
| Period: | ____ Baroque |
| Year: | ____ 16th century |
| Materials: | ____ brick, marble, fresco and stucco |
| Location: | ____ Rome, Italy |
 |
 |
Title: | ____ Il Gesu |
| Artist: | ____ da Vignola (plan) |
| Period: | ____ Baroque |
| Year: | ____ 16th century |
| Materials: | ____ brick, marble, fresco and stucco |
| Location: | ____ Rome, Italy |
|
 |
Title: | ____ Triumph in the Name of Jesus |
| Artist: | ____ Gaulli |
| Period: | ____ Baroque |
| Year: | ____ 17th century |
| Materials: | ____ fresco |
| | |
|
 |
Title: | ____ Hunters in the Snow |
| Artist: | ____ Bruegel the Elder |
| Period: | ____ Northern Renaissance |
| Year: | ____ 1565 |
| Materials: | ____ oil on wood |
| | |
|
 |
Title: | ____ Mosque of Selim II |
| Artist: | ____ Sinan the Great |
| Period: | ____ High Renaissance |
| Year: | ____ 1568-1575 |
| Materials: | ____ brick and stone |
| Location: | ____ Turkey |
|
 |
Title: | ____ Mosque of Selim II |
| Artist: | ____ Sinan the Great |
| Period: | ____ High Renaissance |
| Year: | ____ 1568-1575 |
| Materials: | ____ brick and stone |
| Location: | ____ Turkey |
|
 |
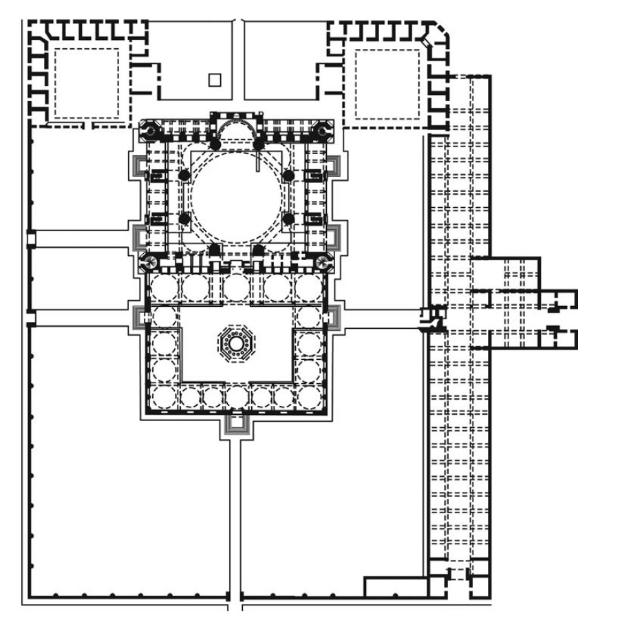
Title: | ____ Mosque of Selim II (plan) |
| Artist: | ____ Sinan the Great |
| Period: | ____ High Renaissance |
| Year: | ____ 1568-1575 |
| Materials: | ____ brick and stone |
| Location: | ____ Turkey |
|
 |
Title: | ____ Calling of Saint Matthew |
| Artist: | ____ Caravaggio |
| Period: | ____ Baroque |
| Year: | ____ 1597-1601 |
| Materials: | ____ oil on canvas |
| | |
 |
 |
Title: | ____ Henri IV Receives Portrait of Marie de' Medici |
| Artist: | ____ Rubens |
| Period: | ____ Flemish Baroque |
| Year: | ____ 1621-1625 |
| Materials: | ____ oil on canvas |
| | |
|
 |
Title: | ____ Self-Portrait with Saskia |
| Artist: | ____ Rembrandt |
| Period: | ____ Dutch Baroque |
| Year: | ____ 1636 |
| Materials: | ____ etching |
| | |
|
 |
Title: | ____ San Carlo alle Quattro Fontane |
| Artist: | ____ Borromini |
| Period: | ____ Baroque |
| Year: | ____ 1638-1646 |
| Materials: | ____ stone and stucco |
| Location: | ____ Rome, Italy |
|
 |
Title: | ____ San Carlo alle Quattro Fontane |
| Artist: | ____ Borromini |
| Period: | ____ Baroque |
| Year: | ____ 1638-1646 |
| Materials: | ____ stone and stucco |
| Location: | ____ Rome, Italy |
|
 |
Title: | ____ San Carlo alle Quattro Fontane (plan) |
| Artist: | ____ Borromini |
| Period: | ____ Baroque |
| Year: | ____ 1638-1646 |
| Materials: | ____ stone and stucco |
| Location: | ____ Rome, Italy |
|
 |
Title: | ____ Church of Santa Maria della Vittoria |
| Artist: | ____ Bernini |
| Period: | ____ Baroque |
| Year: | ____ 1647-1652 |
| Materials: | ____ stucco and gilt bronze |
| Location: | ____ Rome, Italy |
|
 |
Title: | ____ Cornaro Chapel |
| Artist: | ____ Bernini |
| Period: | ____ Baroque |
| Year: | ____ 1647-1652 |
| Materials: | ____ stucco and gilt bronze (marble sculpture) |
| Location: | ____ Rome, Italy |
 |
 |
Title: | ____ Ecstasy of Saint Teresa, Cornaro Chapel |
| Artist: | ____ Bernini |
| Period: | ____ Baroque |
| Year: | ____ 1647-1652 |
| Materials: | ____ marble |
| | |
|
 |
Title: | ____ Angel with Arquebus, Asiel Timor Dei |
| Artist: | ____ Master of Calamarca |
| Period: | ____ Baroque |
| Year: | ____ 17th century |
| Materials: | ____ oil on canvas |
| | |
|
 |
Title: | ____ Las Meninas |
| Artist: | ____ Diego Velazquez |
| Period: | ____ Spanish Baroque |
| Year: | ____ 1656 |
| Materials: | ____ oil on canvas |
| | |
|
 |
Title: | ____ Woman Holding a Balance |
| Artist: | ____ Vermeer |
| Period: | ____ Flemish Baroque |
| Year: | ____ 1664 |
| Materials: | ____ oil on canvas |
| | |
|
 |
Title: | ____ Palace at Versailles |
| Artist: | ____ Le Vau and Hardouin-Mansart |
| Period: | ____ French Baroque |
| Year: | ____ begun 1669 |
| Materials: | ____ masonry, stone, wood, iron and gold leaf |
| Location: | ____ France |
|
 |
Title: | ____ Palace at Versailles |
| Artist: | ____ Le Vau and Hardouin-Mansart |
| Period: | ____ French Baroque |
| Year: | ____ begun 1669 |
| Materials: | ____ masonry, stone, wood, iron and gold leaf |
| Location: | ____ France |
|
 |
Title: | ____ Palace at Versailles (courtyard) |
| Artist: | ____ Le Vau and Hardouin-Mansart |
| Period: | ____ French Baroque |
| Year: | ____ begun 1669 |
| Materials: | ____ masonry, stone, wood, iron and gold leaf |
| Location: | ____ France |
 |
 |
Title: | ____ Palace at Versailles (Hall of Mirrors) |
| Artist: | ____ Le Vau and Hardouin-Mansart |
| Period: | ____ French Baroque |
| Year: | ____ begun 1669 |
| Materials: | ____ masonry, stone, wood, iron, gold leaf. Marble and bronze (sculpture) |
| Location: | ____ France |
|
 |
Title: | ____ Palace at Versailles (Garden) |
| Artist: | ____ Le Vau and Hardouin-Mansart |
| Period: | ____ French Baroque |
| Year: | ____ begun 1669 |
| Materials: | ____ garden |
| Location: | ____ France |
|
 |
Title: | ____ Screen with Siege of Belgrade |
| Artist: | ____ Gonzalez Family |
| Period: | ____ Mexican Baroque |
| Year: | ____ 1697-1701 |
| Materials: | ____ tempera and resin on wood, shell inlay |
| | |
|
 |
Title: | ____ Screen with Hunting Scene |
| Artist: | ____ Gonzalez Family |
| Period: | ____ Mexican Baroque |
| Year: | ____ 1697-1701 |
| Materials: | ____ tempera and resin on wood, shell inlay |
| | |
|
 |
Title: | ____ Virgin of Guadalupe |
| Artist: | ____ Miguel Gonzalez |
| Period: | ____ Mexican Baroque |
| Year: | ____ 1698 |
| Materials: | ____ oil on canvas on wood, inlaid with mother-of-pearl |
| | |
|
 |
Title: | ____ Fruit and Insects |
| Artist: | ____ Ruysch |
| Period: | ____ Dutch Baroque |
| Year: | ____ 1711 |
| Materials: | ____ oil on wood |
| | |
|
 |
Title: | ____ Spaniard and Indian Produce a Mestizo |
| Artist: | ____ Juan Rodriguez Juarez |
| Period: | ____ Spanish Baroque |
| Year: | ____ 1715 |
| Materials: | ____ oil on canvas |
| | |
|
 |
Title: | ____ The Tete a Tete (from Marriage a la Mode) |
| Artist: | ____ Hogarth |
| Period: | ____ Baroque-Rococo |
| Year: | ____ 1743 |
| Materials: | ____ oil on canvas |
| Location: | ____ |
 |
| BACK |
|
NEXT |
|